2003
COMUNITY KINDERGARTEN, PINTO, MADRID
FINALIST COMPETITION
2002
SOCIAL HOUSING, CIUDAD PEGASO, MADRID
FINALIST COMPETITION
1997
COMUNITY THEATER, GUADALAJARA
FINALIST COMPETITION
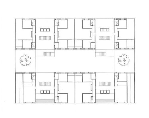
1995
SOCIAL HOUSING, LAS ROSAS, MADRID
HONORABLE MENTION COMPETITION
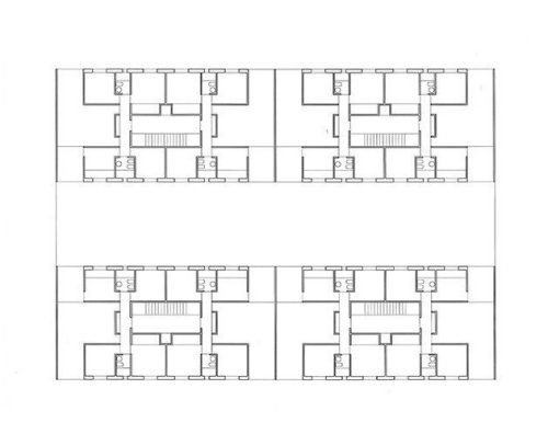
1994
SOCIAL HOUSING, VALLECAS, MADRID
FINALIST COMPETITION
1991
RIBA INTERNATIONAL STUDENTS COMPETITION
FIRST PRIZE
CV 1/5



































